Nurtur
  • Our Brands

Type

Property Type

Bedrooms

Bathrooms

Min. Price

Max. Price

64ba0ee2-DSC_1159
ffac1091-DSC_1106
71f4db12-DSC_1036
f2145324-DSC_1143
8b5f89cc-DSC_1063
7ade3a34-DSC_1075
a684ad5e-DSC_1093
13b9f064-DSC_1099
0b83bb2f-DSC_1115
DJI_0058
ad65889d-DJI_0060

Offers in region of £170,000

2 beds 1 bath

Available

Hawthorne Street, Leicester, Leicestershire

Features

Newly renovated throughout
Option to be sold part-furnished
Choice of new kitchen (within budget if full asking price is offered)
Generously sized kitchen and large bedrooms
Plenty of storage areas
Potential to relocate bathroom downstairs to create a third bedroom upstairs

Summary

FANTASTIC OPPORTUNITY! This newly renovated property offers two generously sized bedrooms, a large kitchen, and potential to add a third bedroom in the future if needed.

Description

Located in the popular area of Newfoundpool, this two-bedroom mid-terrace property offers a fantastic investment opportunity or ideal first home. With a practical layout, low-maintenance features, and easy access to local amenities, the property combines comfort and convenience.

Navigating Through the Property
Upon entering, you are greeted by a welcoming reception room leading through to a spacious living area, perfect for relaxation or entertaining. Beyond the living room is a well-sized kitchen fitted with ample storage and workspace. A convenient rear store room adds further practicality.

Upstairs, the property offers two generously sized bedrooms, both providing comfortable living space. The first floor also includes a modern family bathroom, located towards the rear of the home, offering both a bathtub and additional storage.

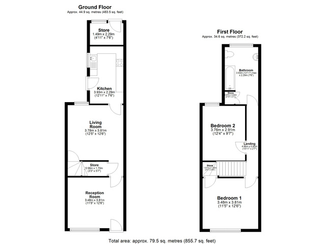
Ground Floor
• Reception Room: 3.48m x 3.81m (11’5” x 12’6”)
• Living Room: 3.78m x 3.81m (12’5” x 12’6”)
• Kitchen: 3.93m x 2.29m (12’11” x 7’6”)
• Store: 1.49m x 2.29m (4’11” x 7’6”)

First Floor
• Bedroom 1: 3.48m x 3.81m (11’5” x 12’6”)
• Bedroom 2: 3.76m x 2.91m (12’4” x 9’7”)
• Bathroom: 3.93m x 2.29m (12’11” x 7’6”)

Location and Amenities
Hawthorne Street is ideally situated in the sought-after Newfoundpool area, offering excellent access to Leicester city centre and the popular Narborough Road, known for its wide range of shops, cafes, and restaurants. The property is also within easy reach of local schools, public transport links, and major road networks such as the A47 and M1.

This location is particularly attractive for professionals, small families, or investors seeking a property with great rental potential and minimal upkeep.

Council Tax Band: A
EPC: C
Agents Note. The seller is a relative of a member of staff at Home Property

Contact
For more information or to arrange a viewing, contact:
Home Property Sales & Lettings
0116 221 4139
hello@homepropertysales.co.uk

Utilities, Rights, Easements & Risks

Utility Supplies
Electricity Ask Agent
Water Ask Agent
Heating Ask Agent
Broadband Ask Agent
Sewerage Ask Agent
Rights & Restrictions
Article 4 Area Ask Agent
Listed property Ask Agent
Restrictions Ask Agent
Required access Ask Agent
Rights of Way Ask Agent
Risks
Flooded in last 5 years Ask Agent
Flood defenses Ask Agent
Flood sources Ask Agent

Additional Details

Chain Free
Investment Opportunity
Bedrooms: 2 Bedrooms
Bathrooms: 1 Bathroom
Receptions: 2 Receptions
Kitchens: 1 Kitchen
Dining Rooms: 1 Dining Room
Tenure: Freehold

Floorplans

3 Hawthorne Street, Leicester 1
3 Hawthorne Street, Leicester

Logo

Home Property Sales - Leicester

23 Meadvale Road, Knighton, Leicester, Leicestershire, LE2 3WN

Phone: 01162214139

Broadband Speeds

Minimum Maximum
Download 3.00 Mbps 1000.00 Mbps
Upload 0.50 Mbps 1000.00 Mbps
Estimated broadband speeds provided by Ofcom for this property's postcode.

Mobile Coverage

Indoor
Provider Voice Data 4G
EE
Three
O2
Vodafone
Estimated mobile coverage provided by Ofcom for this property's postcode.
Outdoor
Provider Voice Data 4G
EE
Three
O2
Vodafone
Estimated mobile coverage provided by Ofcom for this property's postcode.

© 2026 Nurtur
All rights reserved.

Powered by Apex27
Pages
  • Our Brands